M3 Comasina 2 locali
Via Salvemini ampio 2 locali con servizi comodo M3 Comasina
Milano Comasina via G Salvemini, zona residenziale al confine con Affori, ben servita dai principali servizi offre inoltre accesso immediato a numerosi mezzi pubblici quali stazione M3 Comasina e Affori FNM facilmente raggiungibili a piedi, inclusi autobus linee 40, 41, 35, 83, 89, 705, 729
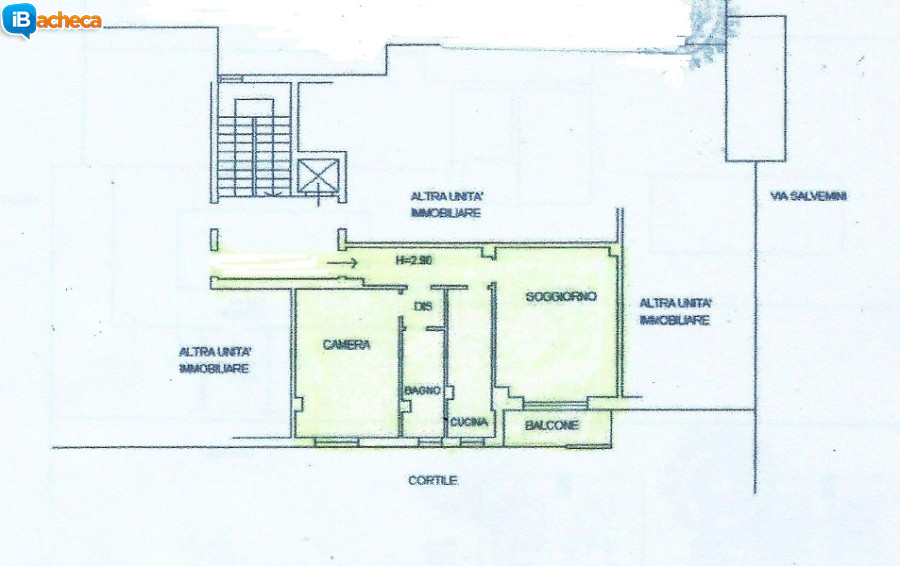
In contesto residenziale immerso nel verde proponiamo luminoso appartamento d’ampia metratura composto da ingresso, ampio soggiorno con uscita sul balcone, cucina semiabitabile, disimpegno con spaziosa camera matrimoniale e bagno finestrato Completa la proprietà una cantina L’appartamento necessita di interventi di ristrutturazione, ma rappresenta un’ottima possibilità per chi desidera personalizzare gli spazi secondo i propri gusti ed esigenze, la metratura generosa inoltre rende i locali confortevoli e versatili ad una ridistribuzione degli ambienti interni
Lo stabile dotato di servizio di portineria, è stato oggetto di una completa e recente ristrutturazione che ha interessato il rinnovamento di tutte le parti comuni, rifacimento delle facciate con realizzazione del cappotto termico, balconi, e l’installazione di un nuovo ascensore, con accessibilità a persona con difficoltà di movimento Classe energetica in fase di richiesta
La richiesta è di 220000 euro Questo immobile libero al rogito, è la soluzione ideale per chi cerca una sistemazione pratica e confortevole a Milano La visita all'immobile deve essere concordata preventivamente, contattaci al L’Olimpo immobiliare
28/04/2026 14:02
pubblicato oggi
1





